Ricerca rapida
-
-
CERCA

Termini Imerese
Appartamento in Vendita Via San Vincenzo dei Paoli

Appartamento

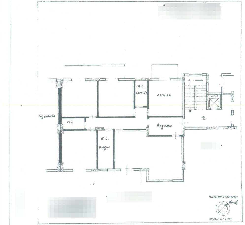
Termini Imerese, nei pressi dello svincolo autostradale, tra la via Falcone e Borsellino e la via Piersanti Mattarella, proponiamo in vendita un luminoso e ampio appartamento di 5 vani più servizi ubicato in un stabile dotato di ascensore.

L'appartamento di 156 mq è composto da un ampio ingresso accogliente, un salone doppio, tre camere, cucina abitabile, disimpegno, due bagni e un ripostiglio. Tutti gli ambienti son dotati di balcone.

L'immobile si trova in un quartiere residenziale ben collegato con le principali vie di comunicazione, e ricco di servizi e attività commerciali.

Non lasciarti sfuggire questa occasione, contattaci subito per organizzare una visita!

Tramite la nostra agenzia, sarà possibile permutare il vostro immobile per l'acquisto di quello nuovo. Disponiamo inoltre di numerosi immobili in vendita o in affitto non ancora pubblicizzati, contattateci per avere informazioni.

Per info e contatti: 091 819 17 98
immobiliaretermini@gmail.com www.immobiliaretermini.it


La nostra Agenzia Immobiliare opera sul territorio di Termini Imerese dal 2002. Il successo ottenuto nel tempo è il risultato del forte impegno espresso nel lavoro che, nell'ambito di un mercato evoluto, ha organizzato servizi avanzati ed investito nella formazione dei nostri operatori.
Grazie alla professionalità ed esperienza acquisita, all'utilizzo del nostro Portafoglio Immobiliare (costituito da numerosi immobili residenziali e commerciali sia in vendita che in affitto), ed alla gestione delle richieste tramite la nostra Banca Dati, siamo in grado di offrire un servizio qualificato a chi si affida a noi per Acquistare, Vendere, Affittare o Permutare.

Caratteristiche

Codice
V000920
Prezzo
145.000,00 EUR
Spese condominiali
600,00 EUR
Mq
156
Classe
G (152,18 [kWh/m²a])
Locali
5
Camere
3
Bagni
2
Stato Immobile
Come da Origini
Grado
Medio
Posizione
Centro
Panorama
Vista Mare
Orientamento
Sud Nord
Lati Liberi
2
Giardino
No
Arredi
Non Arredato
Tipo Soggiorno
Doppio
Tipo Cucina
Abitabile
Riscaldamento
Autonomo
Tipo Riscaldam.
Caldaia
Tipo Impianto
Radiatori
Fonte Energetica
Metano
Acqua Calda
Autonoma
Infissi
Metallo
Serramenti
Discreto
Persiana
Oscurante Metallo
Pavim. Giorno
Marmo
Pavim. Notte
Ceramica
Pavim. Cucina
Ceramica
Pavim. Bagno
Ceramica
Accessori
Ascensore, Lavanderia, Porta Blindata, Ripostiglio

VIDEO

MAPPA

Via San Vincenzo de Paoli 29, Termini Imerese (PA)
Cookie preference