Ricerca rapida
-
-
CERCA

Termini Imerese
Appartamento di fronte Stazione Ferroviaria

Appartamento

Custodire la Storia, abitare il Futuro.

Nato dall'attenta riqualificazione di un antico molino siciliano, il progetto "Residenza il Molino" rappresenta la più raffinata unione tra l'eredità dell'antica Sicilia e i benefici moderni di una casa total green.

Situato a pochi passi dalla Stazione Ferroviaria, il rinnovato complesso residenziale si compone di tre edifici che costituiscono l'ex-molino-pastificio "Giovanni Di Cola", che ha contribuito a scrivere la storia della pasta in Italia e nel mondo che preserva con eleganza le linee storiche del suo passato. La riqualificazione che produrrà 27 unità abitative, si fissa l'obiettivo di far incontrare il confort dell'abitare contemporaneo con il fascino bucolico del passato.

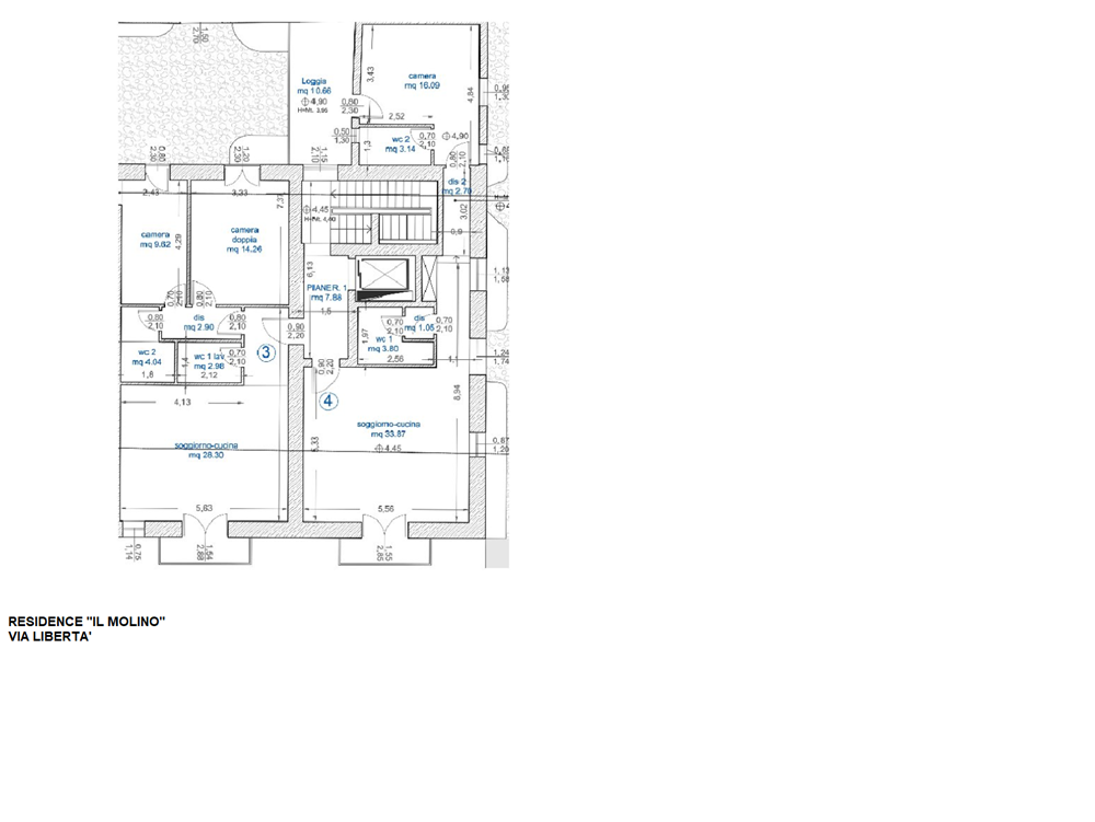
I quattro appartamenti ubicati al primo piano dell'edificio "B", composto complessivamente da otto unità abitative e da quattro negozi, offrono un elevato standard di finiture, in ambienti dal massimo confort.
L'appartamento indicato come "unità n. 2" della superficie di circa 80 mq, è composto da ingresso, ampio living dove inserire la cucina-soggiorno, una camera matrimoniale, una cameretta, due bagni e disimpegno;

Le immagini pubblicate in questo annuncio riproducono fedelmente l'impostazione e le finiture che avranno gli appartamenti duplex dello stesso stabile, e tendono a rappresentare lo stile e le medesime rifiniture che verranno realizzato e riprodotti anche negli appartamenti oggetto di questo annuncio. Il ricercato capitolato che è stato previsto, in corso d'opera potrà essere personalizzato in base al gusto personale del fortunato acquirente.

Realizzata in classe energetica "A/B" . Questa soluzione abitativa che vanta finiture di pregio ed impianti tecnologici di alta qualità, oggi rappresenta la migliore opportunità per chi desidera vivere un' elegante e moderno appartamento all'interno di uno storico e raffinato complesso residenziale. La classe energetica di questo immobile consente di ottenere un "mutuo green" con un tasso agevolato.

Per le unità presenti nell'edificio "B" la consegna è stata prevista entro l'estate del 2026. Contattaci per avere maggiori informazioni e per programmare un appuntamento per visionare ed avere maggiori dettagli su questo splendido appartamento.

Caratteristiche

Codice
V000875
Prezzo
105.000,00 EUR
Mq
80
Classe
A
Locali
3
Camere
2
Bagni
2
Mq Balcone
5
Stato Immobile
Prossima Realizzazione
Grado
Signorile
Posizione
Centro
Panorama
Vista Mare
Orientamento
Nord
Totale Piani
Quattro
Lati Liberi
3
Arredi
Non Arredato
Tipo Soggiorno
Doppio
Tipo Cucina
A Vista
Riscaldamento
Autonomo
Tipo Riscaldam.
Pompa di Calore
Tipo Impianto
Aria
Fonte Energetica
Elettrico
Acqua Calda
Autonoma
Raffrescamento
Split
Infissi
PVC Doppio Vetro
Serramenti
Nuovo
Pavim. Notte
Gres Porcellanato
Pavim. Cucina
Gres Porcellanato
Pavim. Bagno
Gres Porcellanato
Accesso Disabili
Nessuna Barriera
Accesso interno disabili
Pieno accesso
Isolamento
Presente
Isolamento termico
Isolamento tetto/sottotetto
Isolamento acustico
Isolamento completo
Accessori
Aria Condizionata, Ascensore, Cancello Elettrico, Doppi Vetri, Fibra Ottica, Impianto Satellitare, Passaggio Automobilistico, Passaggio Pedonale, Porta Blindata, Rete Dati, Ripostiglio, Video Citofono

MAPPA

via libertà 9, Termini Imerese (PA)
Cookie preference